
型号 | PN | 工作压力/MPa | 适用温度/℃ | 适用介质 |
Z41F46-16 | 16 | 1.6 | ≤150 | 腐蚀性介质 |
Z41F46-16C | ||||
Z41F46-25 | 25 | 2.5 |
型号 | 材料 | ||||
阀体、阀盖 | 闸板、阀杆 | 阀杆螺母 | 填料 | 手轮 | |
Z41F46-16 | 灰铸铁衬氟塑料 | 碳素钢衬氟塑料 | 球墨铸铁或铝青铜 | 聚四氟乙烯 | 球墨铸铁 |
Z41F46-16C | 铸钢 | ||||
Z41F46-25 | |||||

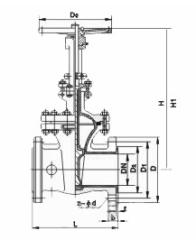
DN | L | D | D1 | D2 | b | z×Φd | H | H1 | D0 | 重量/kg |
40 | 240 | 145 | 110 | 85 | 16 | 4×Φ18 | 320 | 370 | 200 | 15 |
50 | 250 | 160 | 125 | 100 | 16 | 4×Φ18 | 350 | 405 | 200 | 20 |
65 | 270 | 180 | 145 | 120 | 18 | 4×Φ18 | 400 | 470 | 280 | 30 |
80 | 280 | 195 | 160 | 135 | 20 | 8×Φ18 | 460 | 560 | 280 | 38 |
100 | 300 | 215 | 180 | 155 | 20 | 8×Φ18 | 515 | 625 | 320 | 45 |
125 | 325 | 245 | 210 | 185 | 22 | 8×Φ18 | 570 | 690 | 360 | 70 |
150 | 350 | 280 | 240 | 210 | 24 | 8×Φ23 | 640 | 790 | 400 | 90 |
200 | 400 | 335 | 295 | 265 | 26 | 12×Φ23 | 700 | 910 | 450 | 150 |
DN | L | D | D1 | D2 | b | z×Φd | H | H1 | D0 | 重量/kg |
40 | 240 | 145 | 110 | 85 | 16 | 4×Φ18 | 320 | 370 | 200 | 15 |
50 | 250 | 160 | 125 | 100 | 16 | 4×Φ18 | 350 | 405 | 200 | 20 |
65 | 270 | 180 | 145 | 120 | 18 | 4×Φ18 | 400 | 470 | 280 | 30 |
80 | 280 | 195 | 160 | 135 | 20 | 8×Φ18 | 460 | 560 | 280 | 38 |
100 | 300 | 215 | 180 | 155 | 20 | 8×Φ18 | 515 | 625 | 320 | 48 |
125 | 325 | 245 | 210 | 185 | 22 | 8×Φ18 | 570 | 690 | 360 | 76 |
150 | 350 | 280 | 240 | 210 | 24 | 8×Φ23 | 640 | 790 | 400 | 100 |
200 | 400 | 335 | 295 | 265 | 26 | 12×Φ23 | 700 | 910 | 450 | 165 |
![]()