泰科龙阀门科技(江苏)有限公司-流体控制阀门-球阀、衬氟阀门、衬胶阀门一体供应商



HXF8带吸入接管阻火呼吸阀

  • 产品详情

HXF8带吸入接管阻火呼吸阀(图1)

HXF8带接管阻火吸入阀是储罐不可缺少的安全设施。它不仅能维持储罐气压平衡,确保储罐在超压或真空时免遭破坏,且能减少罐内介质的挥发和损耗。
结构特点
根据国家标准《石油化工企业设计防火规范》GB50160-92之规定:甲、乙类液体的固定顶罐,应设 阻火器和呼吸阀。可见呼吸阀、阻火器是储罐不可缺少的安全设施。它不仅能维持储罐气压平衡,确保储罐在超压或真空时免遭破坏,且能减少罐内介质的挥发和损 耗。上海奇高阀门厂生产的带吸入接管阻火呼吸阀,具有结构紧凑、通气量大、泄漏量小、密封性能好等特点。
HXF8带吸入接管阻火呼吸阀(图2)
主要零件材料

 

阀体材料
碳钢WCB、不锈钢304、316、铝合金
正压阀盘材料
不锈钢304、316、铝合金
负压阀盘材料
不锈钢304、316、四氟PTFE
环境温度 ℃
-30~60
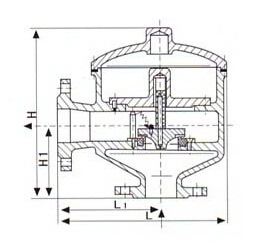
主要外形连接尺寸

 

DN
50
80
100
150
200
250
300
H
250
400
400
470
550
620
700
H1
110
160
160
200
250
290
320
L
300
420
420
520
650
760
880
L1
165
250
250
320
400
480
550


TAG:


返回顶部