ZBSF全不锈钢电磁阀

ZBSF系列全不锈钢电磁阀是工业过程自动化控制系统用的执行器。它在接受电控信号后能自动开启或关闭,实现对管道中的流体介质的通断或流量调节控制。
本系列电磁阀可广泛地应用于纺织、印刷、化工、塑料、橡胶、制药、食品、建材、机械、电器、表面处理等生产和科研部门以及浴室、食堂、空调等人们日常生活 设施中。ZBSF-Y系列电磁阀主要用于腐蚀性液体、超净液体和食用液体介质等液体介质的控制。ZBSF系列电磁阀主要用于腐蚀气体、超净气体等气体介质 的控制。
结构特点
1.零压力亦能打开主阀,低压差流量大,适用范围广
阀盖采用螺纹连接,拆装,维修方便
2.采用特种不锈钢制作,适用于食用流体、超净流体及腐蚀性介质
3.不同的使用介质,采用针对性的密封, 更加提高电磁阀合理性
4.液体、气体、油品可混合使用,更加提高电磁阀的使用范围
5.特殊场合可持续长时间通电,采用耐高温材料,介质流体温度可达220℃
6.阀芯密封磨损可自动补偿,更加提高电磁阀的寿命和可靠性,经受二十年长期市场考验。
结构原理
本阀为分步动作直接先导式电磁阀,根据断电时所处开关状态的不同,可分为常闭电磁阀和常开电磁阀。常闭电磁阀,线圈通电后衔铁在电磁力作用下先带动副阀开启,主阀在所形成的介质压差和电磁力的作用下而开启。线圈断电,衔铁部件复位,主副阀利用介质压力而紧密关闭。
常开电磁阀,线圈通电后,衔铁在磁力作用下下移,推动副阀阀塞下移,直到和副阀座压紧副阀关闭,由于主阀阀杯上下压差趋于相等,主阀阀杯由磁力和自重压紧 密封面,阀门关闭。线圈断电,磁力为零,衔铁和副阀阀塞由弹簧作用上升,副阀打开,主阀阀杯内介质经副阀流走,压力下降,主阀阀杯由上下压差作用向上升 起,主阀打开,阀门开启。
型号说明
技术参数
工作介质 | 腐蚀性气体、超净流体、食用流体 ZBSF-1:气体用 ZBSF-1Y:液体用 ZBSF-2:气体用 ZBSF-2Y:液体用 |
介质温度℃ | ZBSF-1(1Y):≤60℃ ZBSF-2(2Y):≤200℃ |
公称压力(MPa) | 1.6 |
工作压差(MPa) | 0-1.6 |
电源电压 | AC220V DC24V 其余规格可作特殊订货 |
使用寿命 | 按JB/T7352-94规定 |
泄漏量(ml/min) | 按JB/T7352-94·F规定 |
公称通径(mm) | 15 | 20 | 25 | 32 | 40 | 50 |
额定流量系数(KV) | 3.8 | 7.4 | 10.3 | 18.8 | 25.7 | 41 |
功耗(VA) | 40 | 50 |
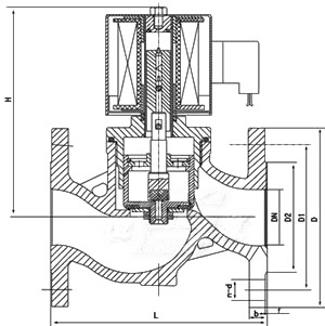
安装尺寸
公称通径 DN | L | H | D | D1 | D2 | b | f | n-d |
15 | 115 | 148 | 95 | 65 | 46 | 14 | 2 | 4-φ14 |
20 | 115 | 148 | 105 | 75 | 56 | 16 | 2 | 4-φ14 |
25 | 125 | 148 | 115 | 85 | 65 | 16 | 3 | 4-φ14 |
32 | 150 | 182 | 140 | 100 | 76 | 18 | 3 | 4-φ18 |
40 | 160 | 182 | 150 | 110 | 84 | 18 | 3 | 4-φ18 |
50 | 190 | 192 | 160 | 125 | 99 | 20 | 3 | 4-φ18 |
TAG: